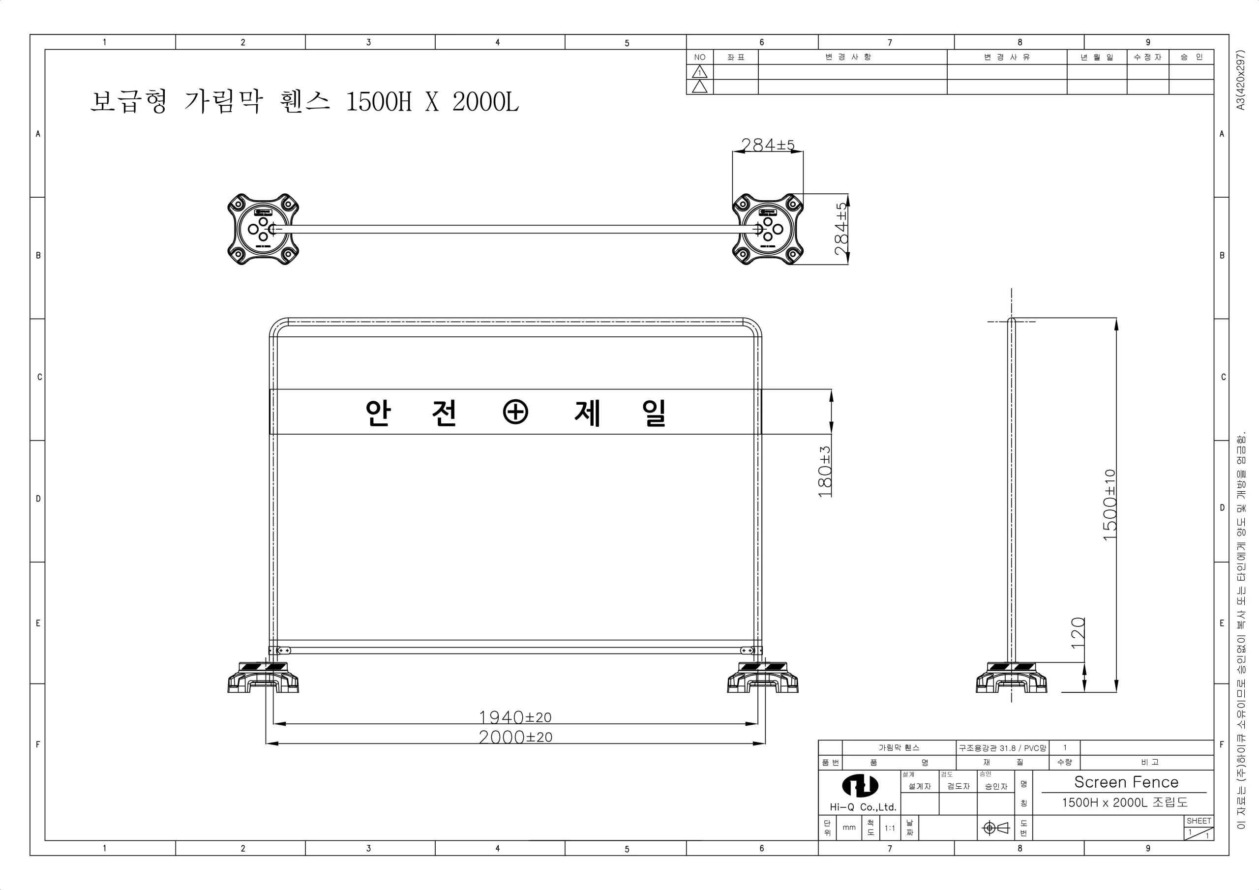
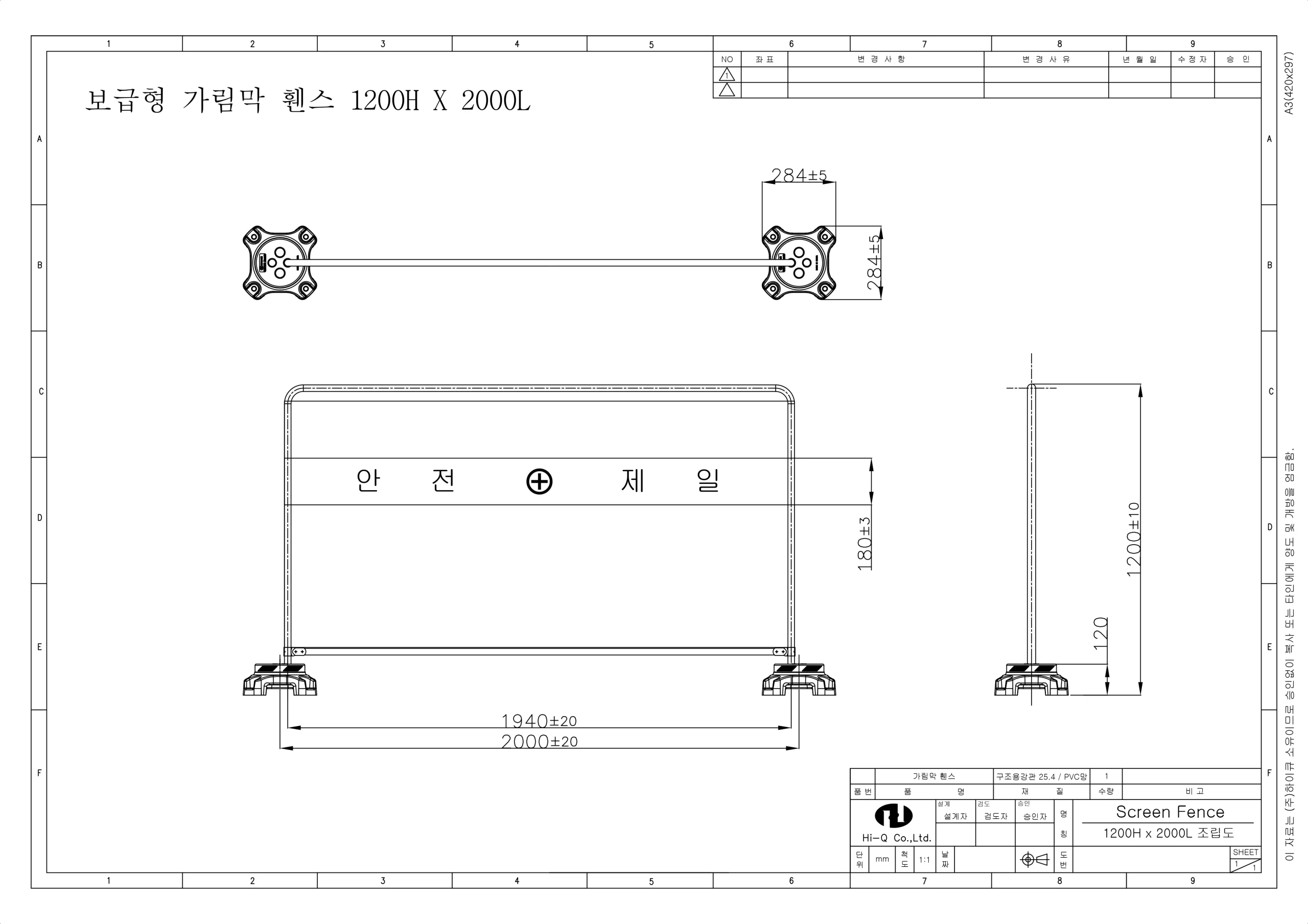
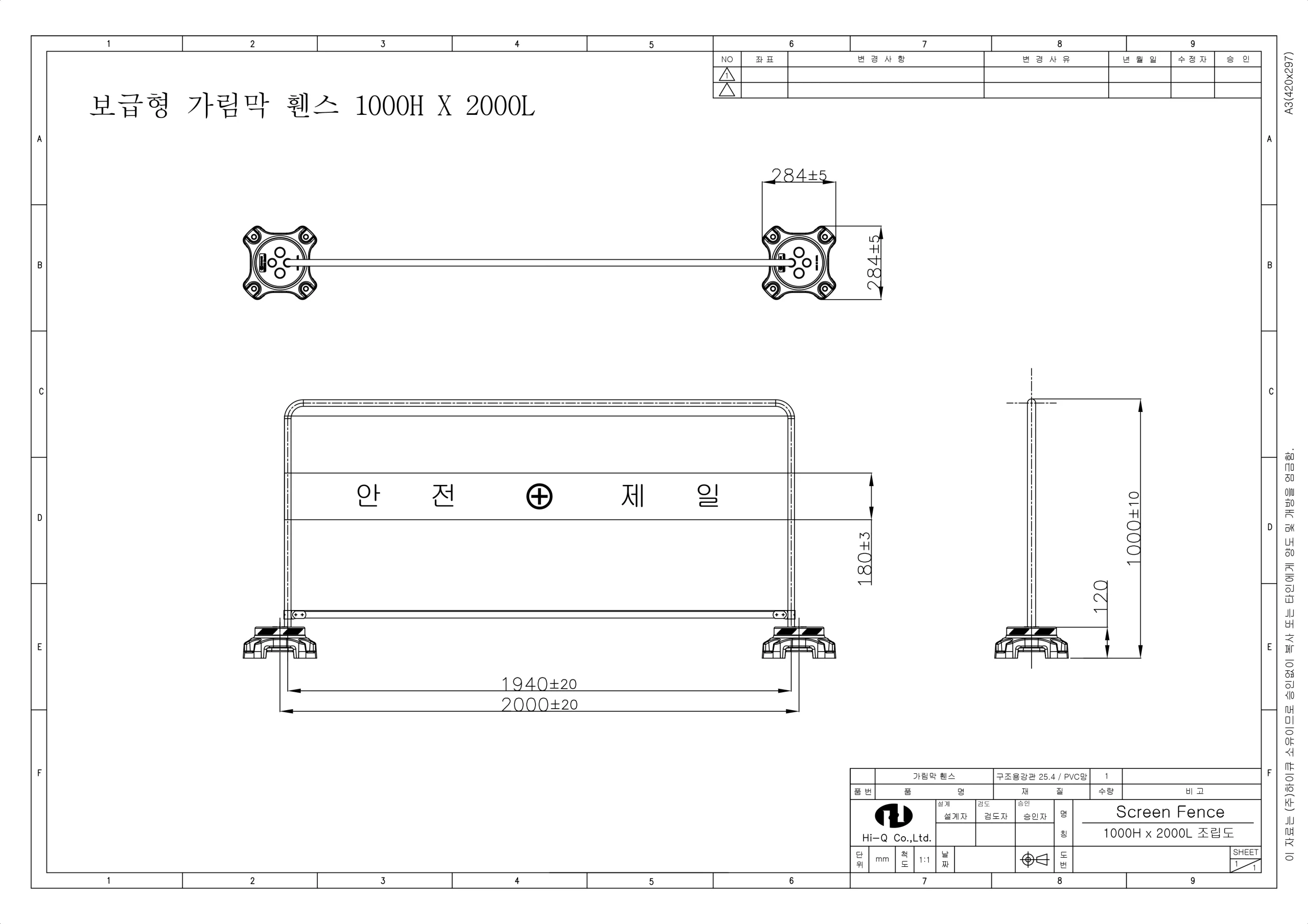
Rào chắn có màng che là thiết bị quan trọng trong các công trình xây dựng, giúp phân chia ranh giới, ngăn chặn sự xâm nhập từ bên ngoài và bảo vệ không gian làm việc. Sản phẩm có thiết kế gọn nhẹ, dễ lắp đặt và đảm bảo an toàn cho người lao động.
Ưu điểm vượt trội
-
Dễ dàng vận chuyển, lắp đặt nhanh chóng, tiện lợi cho mọi công trình.
-
Thiết kế gọn, phù hợp với không gian đô thị, ứng dụng linh hoạt trong nhiều môi trường.
-
Tích hợp vật liệu phản quang, tăng khả năng nhận diện, giảm nguy cơ tai nạn.
-
Độ bền cao, chịu lực tốt, đáp ứng nhu cầu sử dụng lâu dài.
-
Hạn chế bám bẩn, dễ vệ sinh bằng nước, giúp duy trì tính thẩm mỹ.
-
Tùy chỉnh theo yêu cầu: In logo, nội dung theo yêu cầu; chân đế có nhiều lỗ cắm ống thép chắc chắn.
Nơi lắp đặt rào chắn có màng che:
Dùng để phân làn, ngăn cách khu vực thi công trong công trình xây dựng; bảo vệ an toàn cho công nhân và phương tiện trong khu công nghiệp; làm hàng rào tạm thời, phân luồng giao thông tại các sự kiện ngoài trời; chắn khu vực sửa chữa, bảo trì trong không gian đô thị.



















Đánh giá
Chưa có đánh giá nào.